San Francisco , Calle Cardenal Y Guazubira

U$S 235,000

~17,900,000 ₽ / U$S 2,156/m2

Спальни

3

Ванные комнаты

3

Площадь, м²

109

Год постройки

2026

Тип

Дома

более

1 недели назад

Просмотры

24

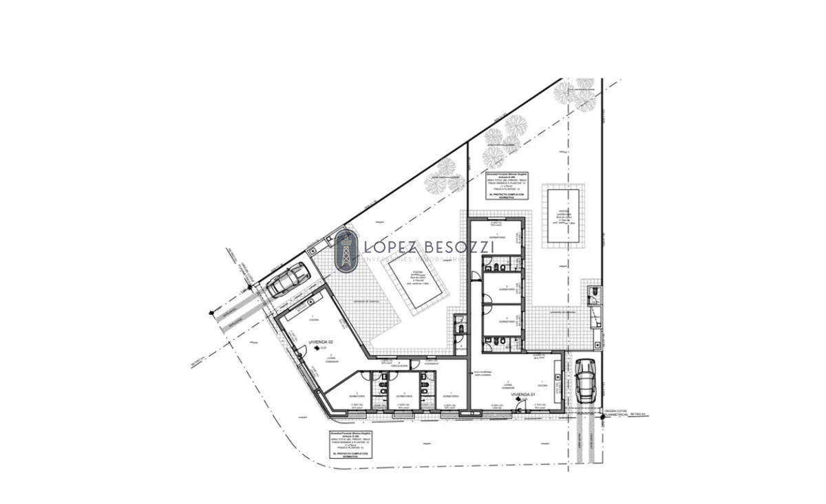
Venta En Pozo Casa De 3 Dormitorios 3 Baños, Piscina En San Francisco - Palmares I Y Ii

Oportunidad venta en pozo de dos exclusivas propiedades de excelente construcción y estilo moderno a menos de 500 metros de la playa en Balneario San Francisco - Piriapolis.



Las unidades contaran con mas de 300 metros de terreno de uso exclusivo para cada una de ellas y mas de 100m² edificados en los cuales de desarrollan en un solo nivel; contado con amplio living comedor y cocina integrada con muebles a medida (Aéreo y bajo Mesada); pasillo de distribución hacia los 3 dormitorios con placares empotrados y 2 baños (1 de ellos en suite).



Fondo amplio y cercado perimetralmente en el cual cada unidad contara con piscina, parrillero con pérgola en madera; deposito y baño de servicio (Toilette).



Sólida construcción tradicional en muros dobles de ladrillo con poliuretano expandido entre muros, aberturas en aluminio con vidrios DVH y mosquiteros (en dormitorios incluso con cortinas de enrollar automatizadas), pisos en porcelanato, techo de Isopanel con cielorraso en yeso aislado en lana de vidrio para mayor prestación térmica y sonora e iluminación LED embutida.

Calefacción con dos sistemas; estufa a leña de alto rendimiento; previsión para equipos de aire acondicionado en todos los ambientes y sistema de alarma.



Por mas información y forma de pago; consultar!

Referencia Interna : Tera-926

Характеристики

ID

Тип

Площадь, м²

Вся постройка, м²

Земля, м²

Спальни

1481090

Продажа

109

109

3232

3

Ванные комнаты

Год постройки

Расстояние до моря

Ссылка

Обновлено

3

2026

menos de 1.000 m

J4F2A1

2026-04-16

Район

235к U$S

Район

Maldonado

Адрес

San Francisco , Calle Cardenal Y Guazubira

Удобства

Дровяная печь

Бассейн

Прачечная

Дополнительные действия

LOPEZ BESOZZI Negocios Inmobiliarios
+59...310
598...310
Похожие объекты
Загрузка...
Зарабатывайте деньги привлекая коллег!

Приглашайте других агентов по недвижимости и получайте 10% комиссии с каждого их продвижения.