Golf, Golf, Punta Del Este.

U$S 1,500,000

U$S 178/m2

Ванные комнаты

1

Площадь, м²

8426

Тип

Земля

более

1 месяц назад

Просмотры

83

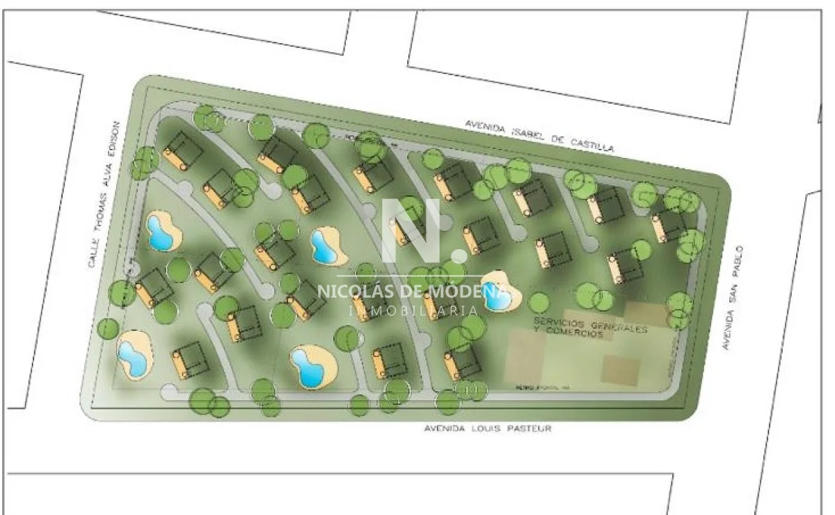
Oportunidad De Inversion, Terreno Frente Al Golf.

Frente al Club de Golf.



Ideal para desarrollo.

Barrio cerrado, inversión, colegio, clínicas de salud, club deportivo, edificio o casas.



8.426 m2 frente al Club House y la cancha.



Próximo al proyecto ZONAFRANCA tecnológica confirmada por el Presidente de la República y el Intendente de Maldonado.



Consulte con nuestros asesores.
Referencia Interna : Tera-7085

Характеристики

ID

Тип

Площадь, м²

Земля, м²

1311570

Продажа

8426

84262

Ванные комнаты

Ссылка

Обновлено

1

A37977

2025-11-17

Дополнительные действия

Inmobiliaria Nicolás De Módena
+598 92 415 537
Похожие объекты
Загрузка...
Зарабатывайте деньги привлекая коллег!

Приглашайте других агентов по недвижимости и получайте 10% комиссии с каждого их продвижения.