U$S 95,000

~7,950,000 ₽ / U$S 63/m2

Ванные комнаты

1

Площадь, м²

1502

Тип

Земля

более

3 месяцев назад

Просмотры

393

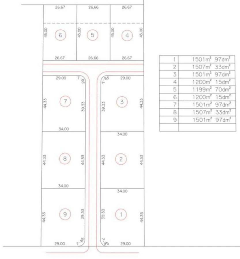
Lote Venta Barrio Cerrado - La Barra

Oportunidad en el nuevo barrio privado Atardeceres de Eguzquiza, ubicado en la exclusiva zona del Hotel Fasano, a metros de New School.

Conformado por solo 9 lotes de entre 1300 m² y 1700 m², este barrio ofrece un entorno natural y exclusivo en una de las zonas más codiciadas de La Barra.



Lote 7

Superficie: 1502 m²

Frente: 44 metros

Ideal para vivienda permanente



A pocos minutos del mar, rodeado de naturaleza y con acceso rápido a La Barra, José Ignacio y Punta del Este.



Consulte con nuestros asesores para más información.

Capital Real Estate





Referencia Interna : Tera-38644

Характеристики

ID

Тип

Площадь, м²

Вся постройка, м²

1194247

Продажа

1502

1502

Земля, м²

Ванные комнаты

Ссылка

Обновлено

15022

1

X72125

2025-07-22

Дополнительные действия

Capital Real Estate
+59...656 +59...802 +59...227
598...802
Похожие объекты
Загрузка...
Зарабатывайте деньги привлекая коллег!

Приглашайте других агентов по недвижимости и получайте 10% комиссии с каждого их продвижения.