Bella Vista, Bella Vista Departamento De Maldonado, Uruguay

$ 35,000

Спальни

2

Ванные комнаты

2

Гараж

1

Площадь, м²

75

Год постройки

2025

Тип

Дома

более

1 недели назад

Просмотры

30

An Be

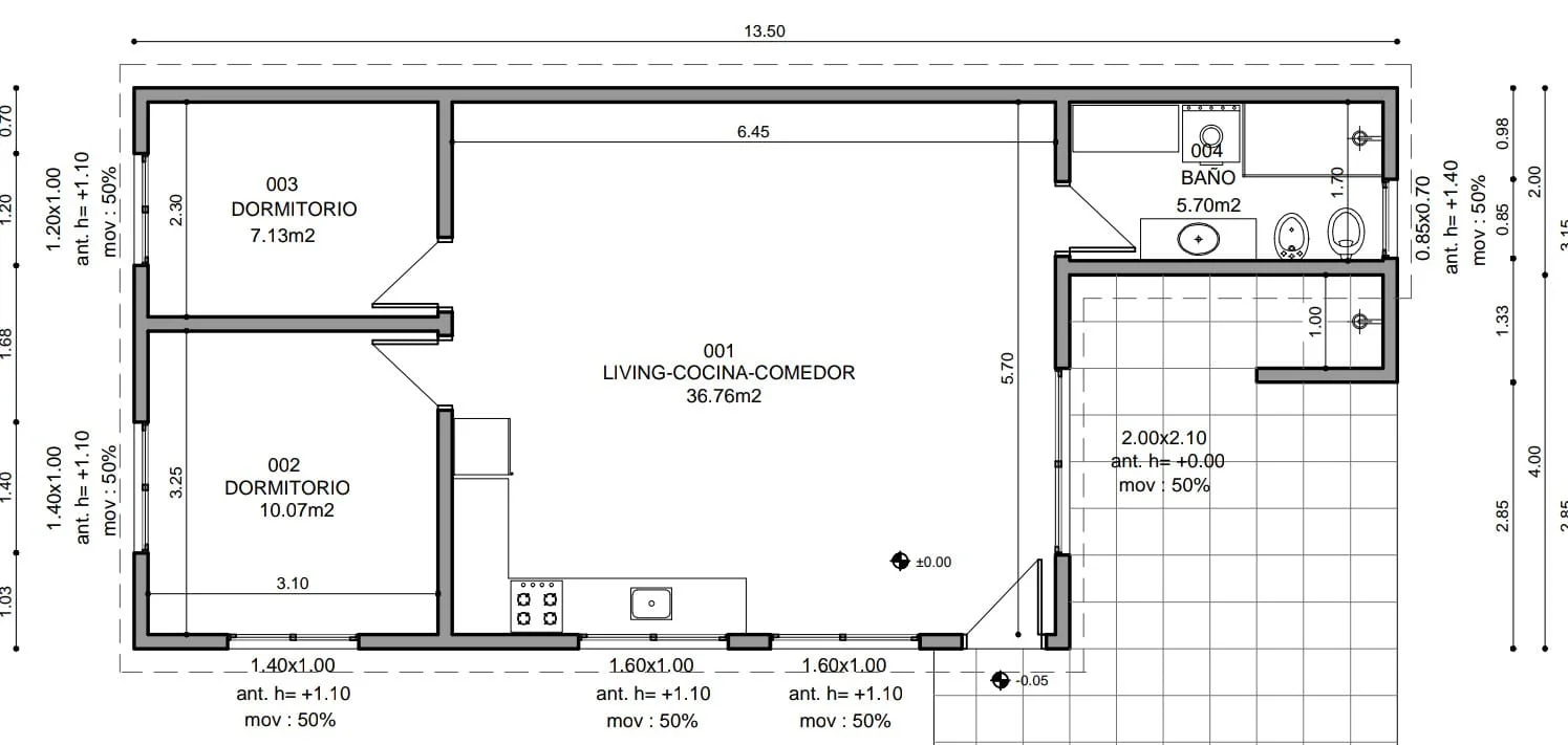
Bungalow a estrenar en el Balneario Bella Vista. Ubicado en un terreno de 1695 m2 (existen 2 casas en esta propiedad), a pocos minutos caminando de la playa. La casa es de nueva construcción. Está muy bien aislado y tiene ventanas de doble vidrio. Esto ahorra costes de calefacción en invierno.

La mitad del terreno de 1695m2 pertenece a esta casa. Se pueden estacionar coches delante de la casa.

Características principales:

  • living comedor luminoso con estufa a lena
  • cocina integrada, equipada con muebles y electrodomésticos
  • salida a terraza privada
  • 2 dormitorios
  • baño con ducha

Exterior:

  • aprox la mitad del terreno de 1695m2
  • entrada vehicular con estacionamiento propio
  • conexiones de luz y agua independientes

Ubicación:

Zona muy tranquila, rodeada de naturaleza. La Playa está a pocos minutos a pie, ideal para vivir cerca del mar y disfrutar del entorno todo el año.

Характеристики

ID

Тип

Площадь, м²

Вся постройка, м²

Земля, м²

Спальни

1341773

Аренда

75

75

8502

2

Ванные комнаты

Гараж

Год постройки

Расстояние до моря

Ссылка

Обновлено

2

1

2025

500 m

IC6E93

2025-12-07

Район

35к $

Район

Maldonado

Адрес

Bella Vista, Bella Vista Departamento De Maldonado, Uruguay

Удобства

Водонагреватель

Дровяная печь

Терраса

Бунгало

Кондиционер

Сад

Разрешены домашние животные

Дополнительные действия

ANKE BENEDIX
091310829
Похожие объекты
Загрузка...
Зарабатывайте деньги привлекая коллег!

Приглашайте других агентов по недвижимости и получайте 10% комиссии с каждого их продвижения.