U$S 260,000

~21,900,000 ₽ / U$S 2,131/m2

Спальни

2

Ванные комнаты

1

Гараж

1

Площадь, м²

122

Год постройки

1972

Тип

Дома

Опубликовано

5 дней назад

Просмотры

10

Venta Casa Lagomar 2 Dormitorios

Corredor Responsable: -
Contacto: Rafael Martinez

Lagomar Sur – Casa en excelente entorno, sobre gran terreno de 733 m² y con excelente potencial

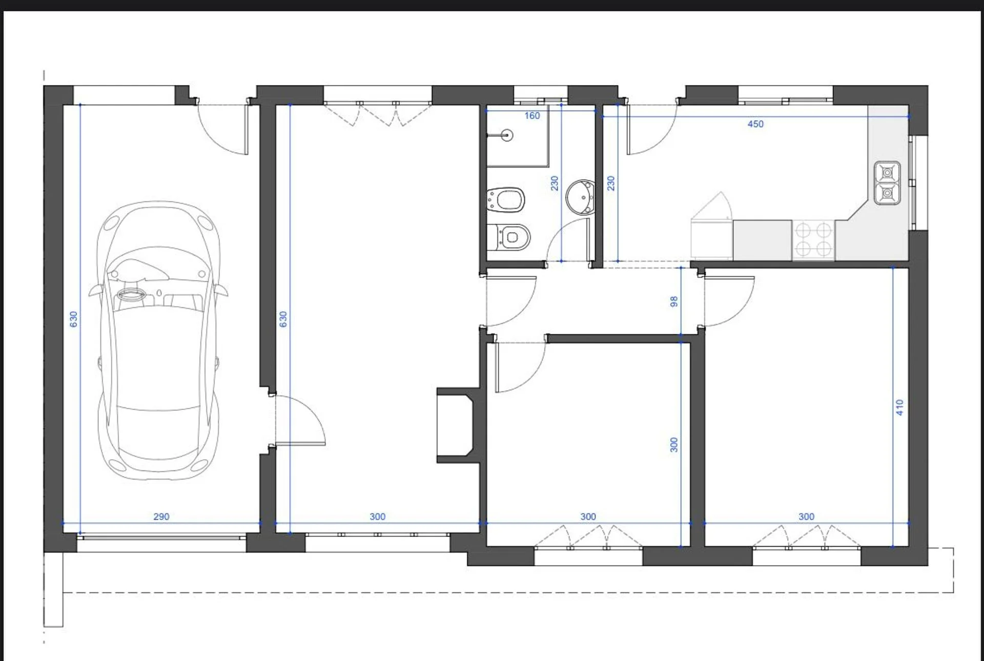
Propiedad ubicada en Becú esquina Gestido, en una zona tranquila y consolidada. Se destaca especialmente por su amplio terreno de 733 m², un diferencial cada vez más valorado en la zona, que brinda múltiples posibilidades de uso, ampliación o desarrollo. Cuenta con 122 m² construidos.

La casa cuenta con reja perimetral y un frente enjardinado de muy buen tamaño.
Garage amplio con posibilidad de guardar un vehículo.

Al ingresar encontramos un living luminoso, con estufa a leña, piso de parquet en muy buen estado y ventanas hacia el frente y el fondo que aportan excelente vista y ventilación.

Dispone de dos dormitorios de buenas dimensiones, ambos con piso de parquet y aberturas con rejas.
La cocina, amplia y definida, tiene ventana y salida directa al fondo.
La propiedad cuenta con un baño completo, amplio.

El amplio fondo representa uno de los grandes diferenciales de esta propiedad, ofreciendo un entorno ideal para disfrutar, así como la posibilidad de construir nuevas viviendas, ampliar la existente, incorporar piscina, barbacoa o desarrollar nuevos proyectos.

Casa de época, sólida, con un entorno ideal para quienes buscan tranquilidad, espacio y potencial de crecimiento.



Honorarios inmobiliarios: 3% + IVA
Compartimos con todos los colegas, no dude en solicitar información.

Cada Oficina es de propiedad, gestión y desarrollo independiente
La presente publicación describe las características esenciales del inmueble, debiéndose consultar al responsable de la operación por la eventual actualización de las medidas, descripciones arquitectónicas y funcionales, servicios, impuestos, precios y demás información, cuyos valores son aproximados.

Cada Oficina es de propiedad, gestión y desarrollo independiente
La presente publicación describe las características esenciales del inmueble, debiéndose consultar al responsable de la operación por la eventual actualización de las medidas, descripciones arquitectónicas y funcionales, servicios, impuestos, precios y demás información, cuyos valores son aproximados.

Характеристики

ID

Тип

Площадь, м²

Вся постройка, м²

Земля, м²

Спальни

1441045

Продажа

122

122

1222

2

Ванные комнаты

Гараж

Год постройки

Ссылка

Обновлено

1

1

1972

H65D71

2026-03-17

Район

260к U$S

Район

Canelones

Адрес

Lagomar, Becu 0

Дополнительные действия

RE/MAX
099...435
598...435
Похожие объекты
Загрузка...
Зарабатывайте деньги привлекая коллег!

Приглашайте других агентов по недвижимости и получайте 10% комиссии с каждого их продвижения.