Barra de Carrasco, Tabare 7800

U$S 375,000

U$S 1,410/m2

Спальни

4

Ванные комнаты

3

Гараж

2

Площадь, м²

266

Год постройки

2025

Тип

Дома

более

1 месяц назад

Просмотры

178

Venta Barra Carrasco Casa 4 Dorm. 3 Baños Cochera

Corredor Responsable: -
Contacto: Martin Lopez
Se venden dos exclusivas casas en Barra de Carrasco a pasos del mar, cerca de la ciudad, en una zona en pleno proceso de crecimiento.

Precio de cada unidad usd 375.000
Gastos de ocupación 3%

Proyecto de viviendas diseñado para quienes buscan equilibrio entre naturaleza, confort y estilo.

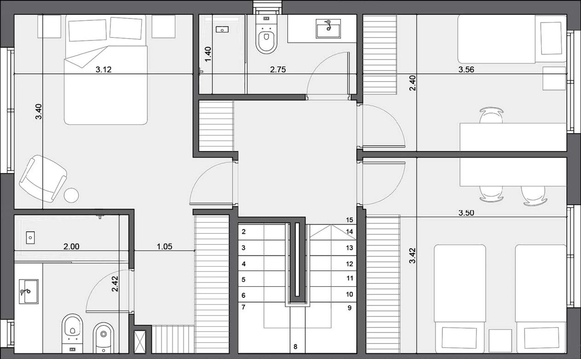
Casas de 3 dormitorios + escritorio en planta baja, dormitorio principal con baño en suite y vestidor, segundo baño en planta alta, toilette en planta baja, jardín privado con parrillero y cochera.
Espacios amplios y luminosos, pensados para disfrutar cada momento del día, con detalles de diseño y terminaciones de alta calidad.

La construcción combina muros de hormigón celular con revestimientos en madera o WPC, otorgando carácter y excelente aislamiento.
Los interiores presentan tabiquería de yeso, pisos vinílicos texturizados, porcelanatos en baños y terrazas.
La cubierta de Isopanel, junto al entrepiso de viguetas y bovedillas, asegura eficiencia térmica y durabilidad.

Las cocinas se destacan por sus mesadas de cuarzo blanco, muebles de melamínico, griferías monocomando y campana de acero inoxidable.
Los baños cuentan con artefactos en loza blanca, griferías negras, mamparas de vidrio templado y mesadas en cuarzo, logrando un estilo moderno y elegante.

Incluye preinstalación para aire acondicionado, estufa de alto rendimiento y aberturas de aluminio con DVH para un máximo confort térmico y acústico.

Cerramiento frontal en hierro, portón motorizado y cochera techada completan un conjunto funcional y estéticamente coherente.

Áreas de las unidades.

Planta baja: 64,4 m²

Planta alta: 65,5 m²

Total interior: 129,9 m²

Parrillero: 19,9 m²

Garage: 18,2 m²

Jardín + fondo: 94,6 m²

Total exterior: 132,7 m²
Cada Oficina es de propiedad, gestión y desarrollo independiente
La presente publicación describe las características esenciales del inmueble, debiéndose consultar al responsable de la operación por la eventual actualización de las medidas, descripciones arquitectónicas y funcionales, servicios, impuestos, precios y demás información, cuyos valores son aproximados.

Характеристики

ID

Тип

Площадь, м²

Вся постройка, м²

Земля, м²

Спальни

1308377

Продажа

266

130

2662

4

Ванные комнаты

Гараж

Год постройки

Ссылка

Обновлено

3

2

2025

C24E39

2025-11-28

Район

375к U$S

Район

Canelones

Адрес

Barra de Carrasco, Tabare 7800

Дополнительные действия

RE/MAX
099001901
Похожие объекты
Загрузка...
Зарабатывайте деньги привлекая коллег!

Приглашайте других агентов по недвижимости и получайте 10% комиссии с каждого их продвижения.