Canelones, Camino De Los Horneros

U$S 698,000

U$S 1,934/m2

Спальни

4

Ванные комнаты

3

Гараж

3

Площадь, м²

361

Год постройки

2025

Тип

Дома

более

1 месяц назад

Просмотры

192

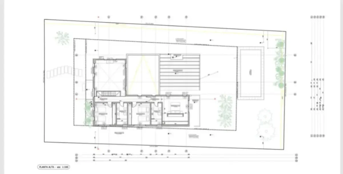
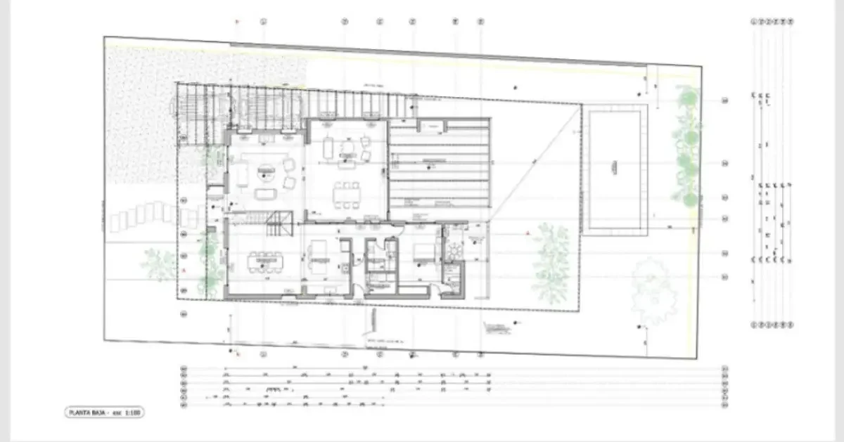
Casa En Venta C/ Cochera En La Tahona

Espectacular edificación en una construcción tradicional, con doble aislacion, doble altura y se desarrolla en 2 plantas. Totalmente construida en Placas Premoldeadas de hormigón, solido y de gran estructura, hermosos detalles y determinaciones. Para todos aquellos que buscan excelente calidad en construcción. Ubicada en el barrio privado del grupo de Cava de la Tahona.
Con un terreno de 835,26 m2 de terreno, con grandes vistas al horizonte,Totalmente despejado.
Gran visibilidad y ubicación privilegiada.

- IMPORTANTE : Esta casa se encuentra en gran avance de obra, la cual te permite y te brinda poder terminar los ultimos detalles a tu gusto.

ENTREGA EN : Noviembre 2025 A Estrenar

Caracteristicas destacadas de la Casa ;

- 4 Dormitorios, 1 en suit
- Dormitorio y Baño de servicio
- Hermosa cocina definida
- Gran y amplio Living
- Comedor
-Calefacción por losa readiante
- Aberturas PVC DHV ( Doble vidrio Hermetico )
- ubicación Noroeste
- Parrillero Techado
-Garage Techado
- Hermosa Piscina


Características Destacadas del Barrio:

- Seguridad y portería las 24 horas del dia y 365 dias del año.
- Plaza de recreacion para niños y niñas
-Club House con piscina para uso exclusivo de sus habitantes.
-Canchas Polideportivas
-Beneficios importantes como residentes para ser socios del club del Golf
- Transporte privado por horario hacia montevideo.
-Servicio de recolección de desechos sólidos.

Terreno: 835,26 m2
Espacio edificado: 361 m2 totales
Espacio interior :254 m2
Área Exterior : 107 m2
Total : 361 m2 totales

DIRECCIÓN: Cava de la Tahona
PRECIO: U$D 698.000

Agente Inmobiliario Jesus Sosa - INMOBILIARIA PLATINUM.

Gran oportunidad, no dude en consultarme.
Trabajamos de Lunes a Domingo 9-22Hs

Характеристики

ID

Тип

Площадь, м²

Вся постройка, м²

Земля, м²

Спальни

1308398

Продажа

361

254

8352

4

Ванные комнаты

Гараж

Год постройки

Ссылка

Обновлено

3

3

2025

H2F2D2

2025-11-10

Район

698к U$S

Район

Canelones

Адрес

Canelones, Camino De Los Horneros

Удобства

Гараж

Гардеробная

Бассейн

Центральное горячее водоснабжение

Кондиционер

Отопление

Сад

Дополнительные действия

Platinum
097687948
Похожие объекты
Загрузка...
Зарабатывайте деньги привлекая коллег!

Приглашайте других агентов по недвижимости и получайте 10% комиссии с каждого их продвижения.