2
2
97
1970
Дома
1 месяц назад
124
Corredor Responsable: -
Contacto: Fabián Montenegro
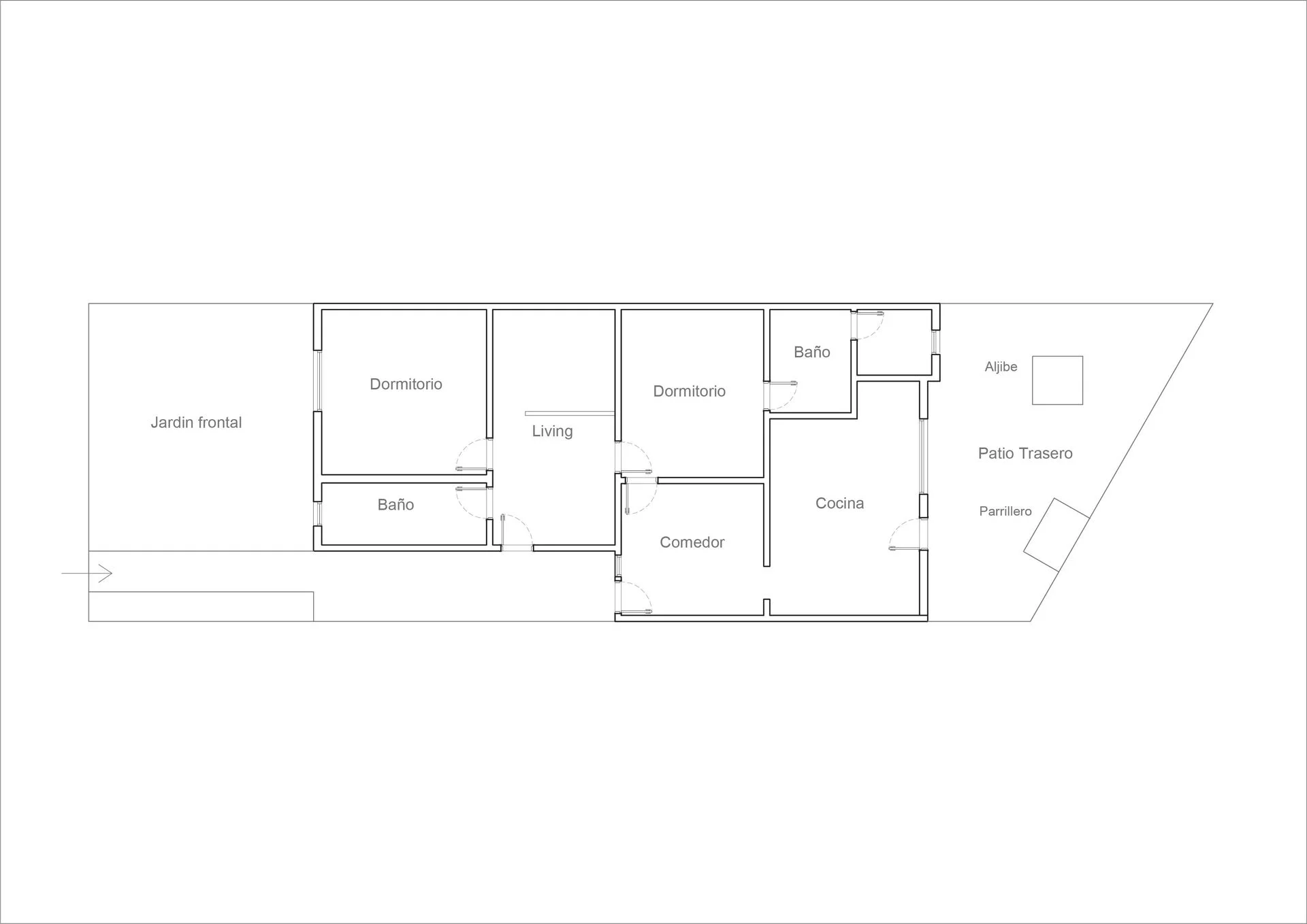
Se encuentra a la venta \\\"A reacondicionar\\\", casa de dos dormitorios, en San Jacinto, Canelones.
Una excelente oportunidad!!
Esta propiedad es ideal, cuenta con una construcción solida, muy bien ubicada, a escasos metros de la ruta 11, y a dos cuadras de la principal avenida de San Jacinto. Una localidad muy tranquila que goza de la tranquilidad del interior del país a solo 50km de Montevideo.
Tiene la cualidad de contar con espacios amplios y altos.
Cuenta con:
- Amplio living
- 2 amplios dormitorios.
- 2 baños (uno de ellos a reciclar como baño en suite)
- Comedor independiente.
- Amplia cocina, con acceso directo a patio trasero con parrillero y aljibe.
- Jardín al frente.
No dudes en consultar y programar una visita!
Comparto con todos los colegas.
Cada Oficina es de propiedad, gestión y desarrollo independiente
La presente publicación describe las características esenciales del inmueble, debiéndose consultar al responsable de la operación por la eventual actualización de las medidas, descripciones arquitectónicas y funcionales, servicios, impuestos, precios y demás información, cuyos valores son aproximados.
ID
Тип
Площадь, м²
Вся постройка, м²
Земля, м²
1300682
Продажа
97
97
972
Спальни
Ванные комнаты
Год постройки
Ссылка
Обновлено
2
2
1970
Z44A54
2025-11-10
Район
Canelones
Адрес
San Jacinto, Luis A. De Herrera S/n 0
Зона барбекю
Приглашайте других агентов по недвижимости и получайте 10% комиссии с каждого их продвижения.
Код отправлен на
Выберите вариант продвижения:
Cargando formulario de pago...
© Real Estate Evolution, 2023-2025