Playa Mansa, Playa Mansa, Parada 27

U$S 16,000

$ ~639,000

Dormitorios

2

Baños

2

Garaje o Cochera

1

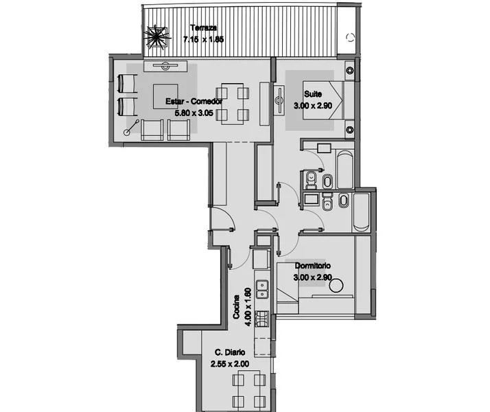
M² edificados

121

Tipo de Propiedad

Apartamento

hace más de

11 meses

Vistas

1997

Oportunidad Frente Al Mar !

Diseñado por el prestigioso estudio de arquitecto AISENSON, cuenta con servicio de recepción y conserjería, servicio de telefonía interna directa desde cada unidad hacia el puesto de control y áreas comunes, sistema de aire acondicionando central, ascensores de última generación y un amplio lobby de entrada con frente vidriado.

Todas las unidades tienen garages con baulera, amplias terrazas y balcones.

A su vez cuenta con azotea con hidromasajes y parrillero exclusivo por unidad, piscina exterior, solárium y jardines exteriores, piscina climatizada, gimnasio, sauna, microcine, sala de máquinas y áreas comunes.




Temporada 2026:
Enero USD 16.000
1era quincena USD 10.000
2da quincena USD 8.500

CAP211919
.

Detalles de la Propiedad

ID

Tipo de Propiedad

Tipo de Operación

M² edificados

Habitaciones

891790

Apartamento

Alquiler

75

3

Baños

Dormitorios

Garaje o Cochera

Referencia

Actualizado

2

2

1

L56C79

2025-08-26

Ubicación

16к U$S

Ubicación

Maldonado

Dirección

Playa Mansa, Playa Mansa, Parada 27

Comodidades de la propiedad

Calefacción Individual

Parrillero

Terraza

Vestidor

GYM

Calefacción Central

Aire Acondicionado

Living comedor

Acciones Adicionales

COVELLO INTERNATIONAL
09...062
598...062
Objeto similar
Cargando...
¡Gana dinero refiriendo colegas!

Invita a otros agentes inmobiliarios y gana 10% de comisión por cada promoción que realicen.