Playa Mansa, Punta del Este, Av Chiverta

U$S 155,400

$ ~6,200,000 / U$S 3,108/m2

Dormitorios

1

Baños

1

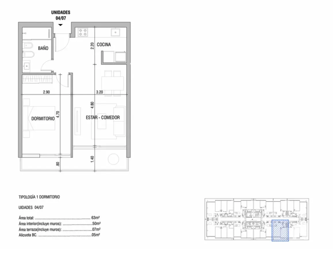
M² edificados

50

Año de Construcción

2025

Tipo de Propiedad

Apartamento

hace más de

2 años

Vistas

3559

Excelente Inversión Compre En Pozo En 60 Cuotas! 1 Dormitorio En Punta Del Este



¡Ven a disfrutar de la vida en Chiverta! Esta hermosa unidad de 1 dormitorio y 1 baño está ubicada a sólo 300 metros del mar. Disfruta de la cocina totalmente equipada, Wi-Fi, sala de reuniones, juegos al aire libre, sauna y piscina interior y exterior. Esta unidad de 60 m2 cuenta con una superficie propia y total de 60 m2. ¡No pierdas la oportunidad de disfrutar de la vida en Chiverta! Consulta con nuestros asesores para obtener más información. Referencia Interna : Tera-20509

Detalles de la Propiedad

ID

Tipo de Propiedad

Tipo de Operación

M² edificados

M² del terreno

Habitaciones

473735

Apartamento

Venta

60

60

2

Baños

Dormitorios

Año de Construcción

Distancia al Mar

Referencia

Actualizado

1

1

2025

300 m

BEDC61

2023-12-23

Comodidades de la propiedad

Balcón

GYM

Piscina

Lavadero

Sauna

Acciones Adicionales

Inmobiliaria Nicolás De Módena
099...537
598...537
Objeto similar
Cargando...
¡Gana dinero refiriendo colegas!

Invita a otros agentes inmobiliarios y gana 10% de comisión por cada promoción que realicen.