U$S 290,000

$ ~11,800,000 / U$S 3,222/m2

Dormitorios

3

Baños

2

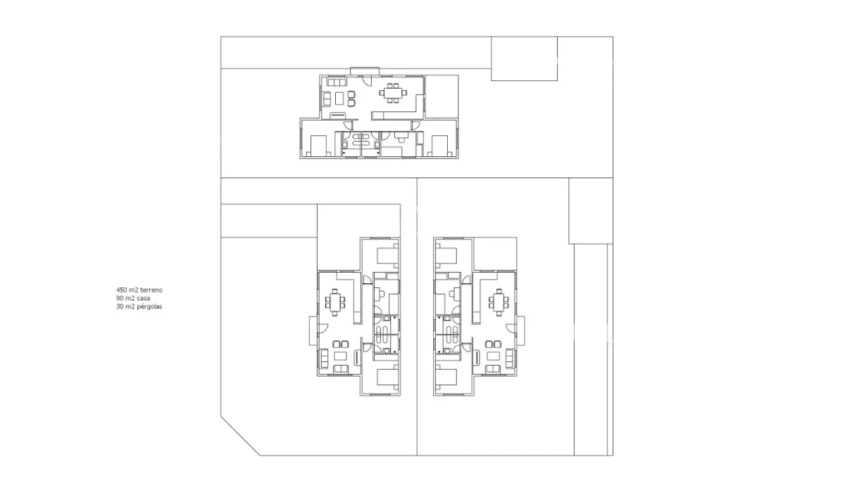
M² edificados

90

Año de Construcción

2026

Tipo de Propiedad

Casa

Publicado

2 días

Vistas

5

Casas En Parque Burnett Pinares

Tu Refugio Ideal en Pinares: Confort y Naturaleza en Punta del Este

Descubre esta encantadora casa en Pinares, un rincón privilegiado de Punta del Este, donde la tranquilidad y la calidad de vida se unen en perfecta armonía.

Con 90 m² construidos sobre un generoso terreno de 645 m², esta propiedad ofrece un espacio ideal para disfrutar en familia o con amigos. Cuenta con tres cómodos dormitorios, de los cuales uno es en suites, garantizando la privacidad y el confort que mereces. La cocina, bien equipada, se integra a un luminoso living-comedor, creando un ambiente acogedor y funcional para tus momentos más especiales.

Ubicada en una zona tranquila y arbolada, esta casa es el lugar perfecto para desconectar y disfrutar de la naturaleza, sin renunciar a la cercanía de las playas y servicios que caracterizan a Punta del Este.

No pierdas la oportunidad de hacer de este espacio tu nuevo hogar. Consulta con nuestros asesores y descubre todo lo que esta propiedad tiene para ofrecerte. ¡Tu nuevo comienzo te espera! Referencia Interna : Tera-3114

Detalles de la Propiedad

ID

Tipo de Propiedad

Tipo de Operación

M² edificados

M² del terreno

Habitaciones

1442536

Casa

Venta

90

6452

4

Baños

Dormitorios

Año de Construcción

Referencia

Actualizado

2

3

2026

VD9873

2026-03-18

Acciones Adicionales

Lumara
094...520
598...520
Objeto similar
Cargando...
¡Gana dinero refiriendo colegas!

Invita a otros agentes inmobiliarios y gana 10% de comisión por cada promoción que realicen.