Solymar, Jorge Lazaroff 0

U$S 247,500

$ ~9,880,000 / U$S 1,919/m2

Dormitorios

3

Baños

2

Garaje o Cochera

2

M² edificados

129

Año de Construcción

2025

Tipo de Propiedad

Casa

hace más de

3 meses

Vistas

441

Venta Casa Tres Dormitorios Solymar

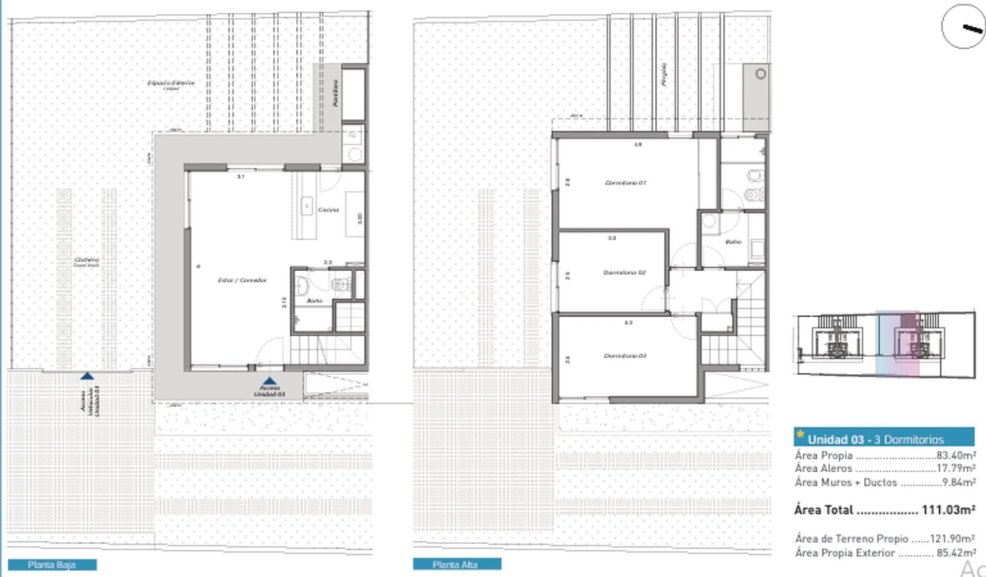
Corredor Responsable: - Contacto: Rafael Martinez 001 Casa de 3 dormitorios en un entorno tranquilo, Solymar SUR Conjunto de 4 viviendas en construcción tradicional, con orientación este, ubicadas a solo 30 metros de Márquez Castro y a 5 minutos a pie de la playa. Excelente conectividad con amplia locomoción en la zona. Distribución: Planta baja: • Living-comedor con cocina integrada. • Mesada desayunador en paralelo con piso de cerámica rectificada. • Mueble bajo mesada y aéreo en melamínico (15 y 18 mm). • Previsión para lavavajillas y lavarropas. • Baño completo. • Jardín de 75 m² con parrillero y pérgola. • Estacionamiento para dos autos. Planta alta: • Tres dormitorios, con piso flotante símil madera (8 mm austriaco o similar). • Dormitorio principal con placard en melamínico (15 o 18 mm). • Placard adicional para calefón y guardado. Características adicionales: • Previsión para aire acondicionado tipo split en estar y dormitorios. • Previsión para TV cable y fibra óptica. • Aberturas en aluminio serie PROBBA. • Pórtico de acceso común techado. • Pórtico de acceso y pavimentos exteriores en hormigón llaneado y piedra partida. • Privacidad y seguridad: concepto in house, con muros perimetrales de 2 metros y cercos divisorios entre casas. • Personalización: en este momento del desarrollo existe la posibilidad de elegir colores de cocina, placares, revestimientos y pintura en esta etapa del desarrollo, fecha prevista de entrega setiembre 25. Beneficios de Vivienda Promovida: La compra de esta propiedad cuenta con los beneficios de la Ley de Vivienda Promovida, lo que implica: • Exoneración de ITP en la compra. • Exoneración de IRPF en arrendamiento por 10 años. • Exoneración del Impuesto al Patrimonio por 10 años. Forma de pago: • 10% de reserva. • 30% al compromiso (aproximadamente en 60 días, incluyendo lo entregado en la reserva). • Saldo contra ocupación (octubre/noviembre). • Gastos de ocupación: 4%. • Acepta financiación bancaria. Comisión inmobiliaria: 3% + IVA. Compartimos con todos los colegas. Cada Oficina es de propiedad, gestión y desarrollo independiente La presente publicación describe las características esenciales del inmueble, debiéndose consultar al responsable de la operación por la eventual actualización de las medidas, descripciones arquitectónicas y funcionales, servicios, impuestos, precios y demás información, cuyos valores son aproximados.

Detalles de la Propiedad

ID

Tipo de Propiedad

Tipo de Operación

M² edificados

M² del terreno

Habitaciones

1233099

Casa

Venta

111

1292

4

Baños

Dormitorios

Garaje o Cochera

Año de Construcción

Referencia

Actualizado

2

3

2

2025

V12EA2

2025-08-31

Ubicación

247.5к U$S

Ubicación

Canelones

Dirección

Solymar, Jorge Lazaroff 0

Acciones Adicionales

RE/MAX
099...435
598...435
Objeto similar
Cargando...
¡Gana dinero refiriendo colegas!

Invita a otros agentes inmobiliarios y gana 10% de comisión por cada promoción que realicen.