U$S 273,000

$ ~11,000,000 / + $ 2,000 gastos comunes / U$S 1,542/m2

Dormitorios

3

Baños

2

Garaje o Cochera

1

M² edificados

177

Año de Construcción

2026

Tipo de Propiedad

Casa

hace más de

1 mes

Vistas

122

Venta Casa 3 Dormitorios Lagomar



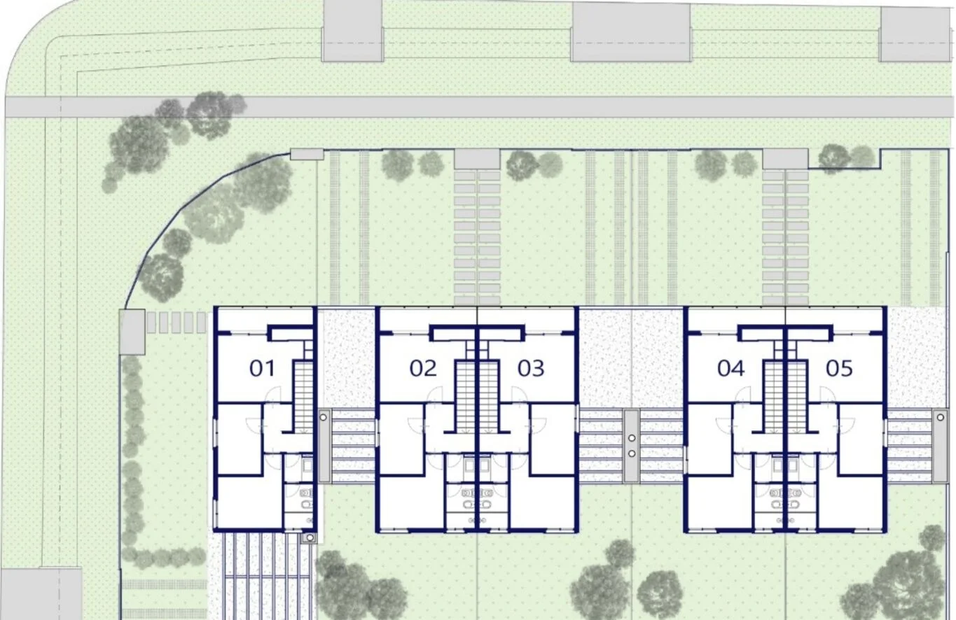
MAR INDIGO a estrenar en Lagomar Sur
Conjunto de 5 casas dúplex de tres dormitorios con acceso individual, jardín y fondo de uso exclusivo. Construcción tradicional de hormigón HCCA, previsión para instalación de aire acondicionado, conexiones para lavavajilla y lavarropas.
107 m2 total construido
177 m2 del lote
140 m2 área verde exclusiva
Se desarrollan en 2 plantas:
Planta Baja: living comedor con cocina integrada con mueble en melamínico MDF bajo y sobre mesada. Baño social. Ingreso vehicular y peatonal independiente, cochera para dos o mas vehículos, parrillero, pérgola
Planta Alta.
Hall de distribución con placard
3 Dormitorios principal con placares, terraza
Baño completo compartimentado.
Excelente ubicación próximo a todos los servicios.
MIND05

Detalles de la Propiedad

ID

Tipo de Propiedad

Tipo de Operación

M² edificados

M² del terreno

Habitaciones

Baños

1451334

Casa

Venta

107

1772

4

2

Dormitorios

Garaje o Cochera

Año de Construcción

Gastos Comunes

Referencia

Actualizado

3

1

2026

$2000

O1C6EC

2026-04-11

Ubicación

273к U$S

Ubicación

Canelones

Dirección

Lagomar

Comodidades de la propiedad

Parrillero

Jardín

Acciones Adicionales

Kosak Inversiones Inmobiliarias
097...318
598...318
Objeto similar
Cargando...
¡Gana dinero refiriendo colegas!

Invita a otros agentes inmobiliarios y gana 10% de comisión por cada promoción que realicen.