Solymar, 16 De Marzo De 1984 700

U$S 180,000

$ ~7,190,000 / U$S 1,818/m2

Dormitorios

2

Baños

1

Garaje o Cochera

1

M² edificados

99

Año de Construcción

2025

Tipo de Propiedad

Casa

hace más de

1 mes

Vistas

278

Venta Casa A Estrenar 2 Dormitorios Cochera

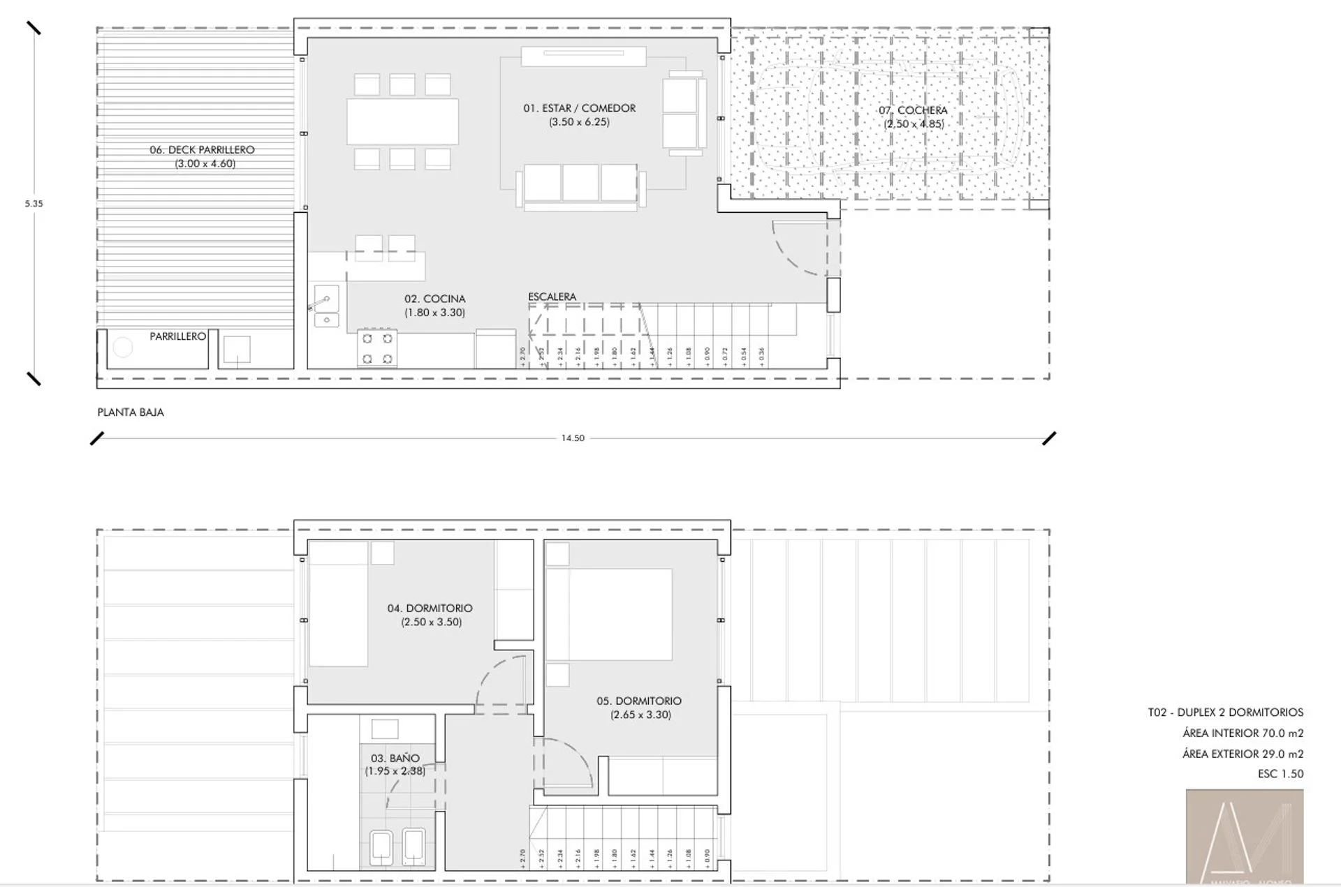
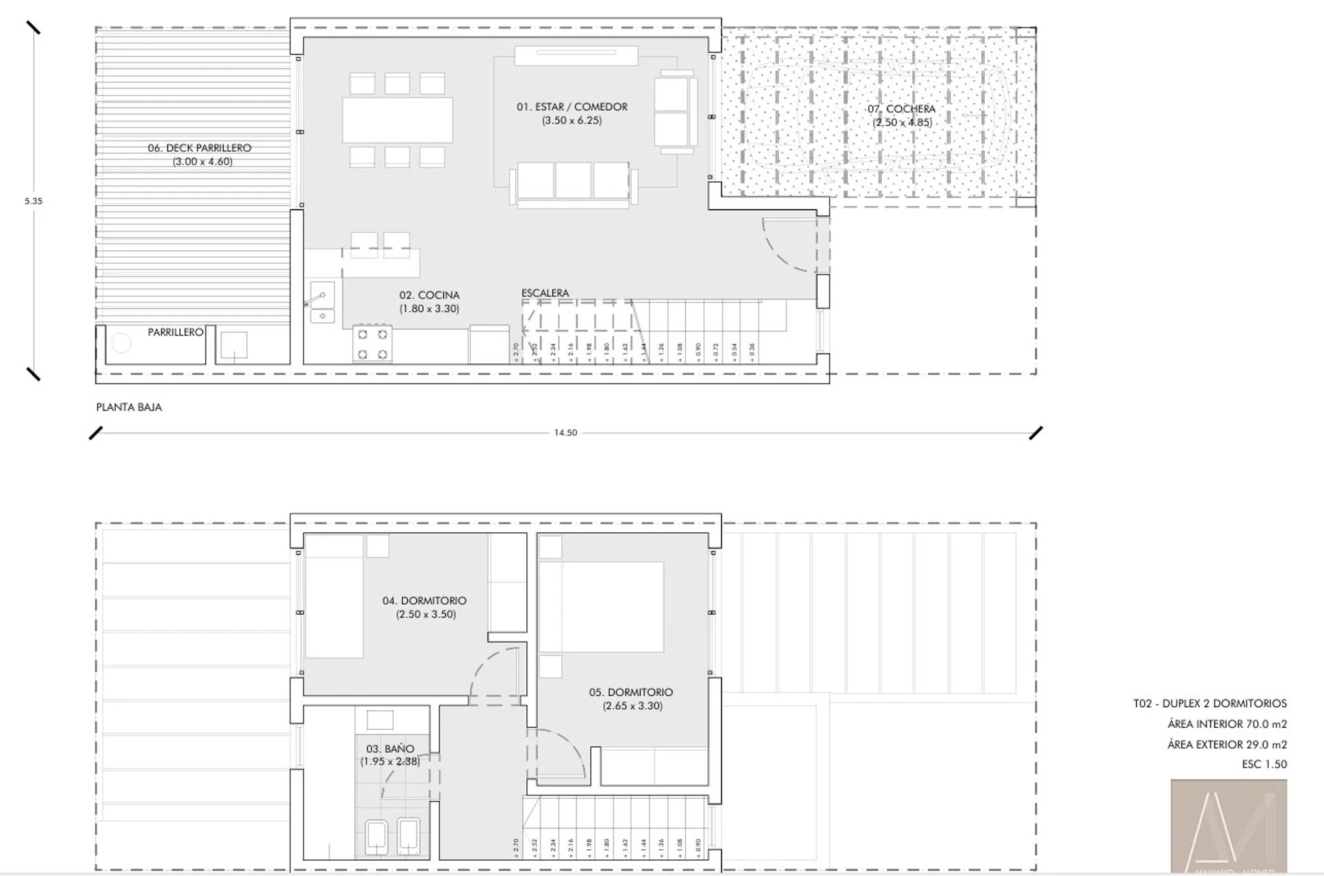
Corredor Responsable: - Contacto: Valeria Cruz Proyecto exclusivo en Solymar (al sur de Ruta Interbalnearia), muy buena ubicación muy próximo a Car One y Almenara. Ultima de 2 dormitorios y 1 baños y toillete (actualmente despojador con previsión sanitaria para convertir en baño desp de la final) Patio con parrillero y cochera exclusiva. Estrena Ya! Excelentes terminaciones y construcción tradicional. Acepta Financiación bancaria. Cada unidad ofrece: Jardín privado con deck de madera y pérgola en hierro y madera. Parrillero integrado y cochera. Placares. Preinstalación para aire acondicionado y estufa a leña de alto rendimiento (opcional). Beneficios: Espacios verdes con área de uso común y juegos infantiles. Cerramiento perimetral, portón eléctrico y sistema de videovigilancia. Calles asfaltadas, saneamiento en toda la zona e iluminación pública. Precio U$S 180.000 Conexiones 3% Cada Oficina es de propiedad, gestión y desarrollo independiente La presente publicación describe las características esenciales del inmueble, debiéndose consultar al responsable de la operación por la eventual actualización de las medidas, descripciones arquitectónicas y funcionales, servicios, impuestos, precios y demás información, cuyos valores son aproximados.

Detalles de la Propiedad

ID

Tipo de Propiedad

Tipo de Operación

M² edificados

M² del terreno

Habitaciones

1239847

Casa

Venta

70

992

3

Baños

Dormitorios

Garaje o Cochera

Año de Construcción

Referencia

Actualizado

1

2

1

2025

ZC05CB

2025-09-17

Ubicación

180к U$S

Ubicación

Canelones

Dirección

Solymar, 16 De Marzo De 1984 700

Comodidades de la propiedad

Parrillero

Acciones Adicionales

RE/MAX
099...441
598...441
Objeto similar
Cargando...
¡Gana dinero refiriendo colegas!

Invita a otros agentes inmobiliarios y gana 10% de comisión por cada promoción que realicen.