Ciudad de la Costa, Ruta General Líber Seregni 23500

U$S 330,000

$ ~13,300,000 / U$S 2,578/m2

Dormitorios

3

Baños

2

Garaje o Cochera

3

M² edificados

128

Año de Construcción

2019

Tipo de Propiedad

Apartamento

hace más de

1 semana

Vistas

55

Venta Apto 3 Dormitorios Haras Del Lago Con Renta

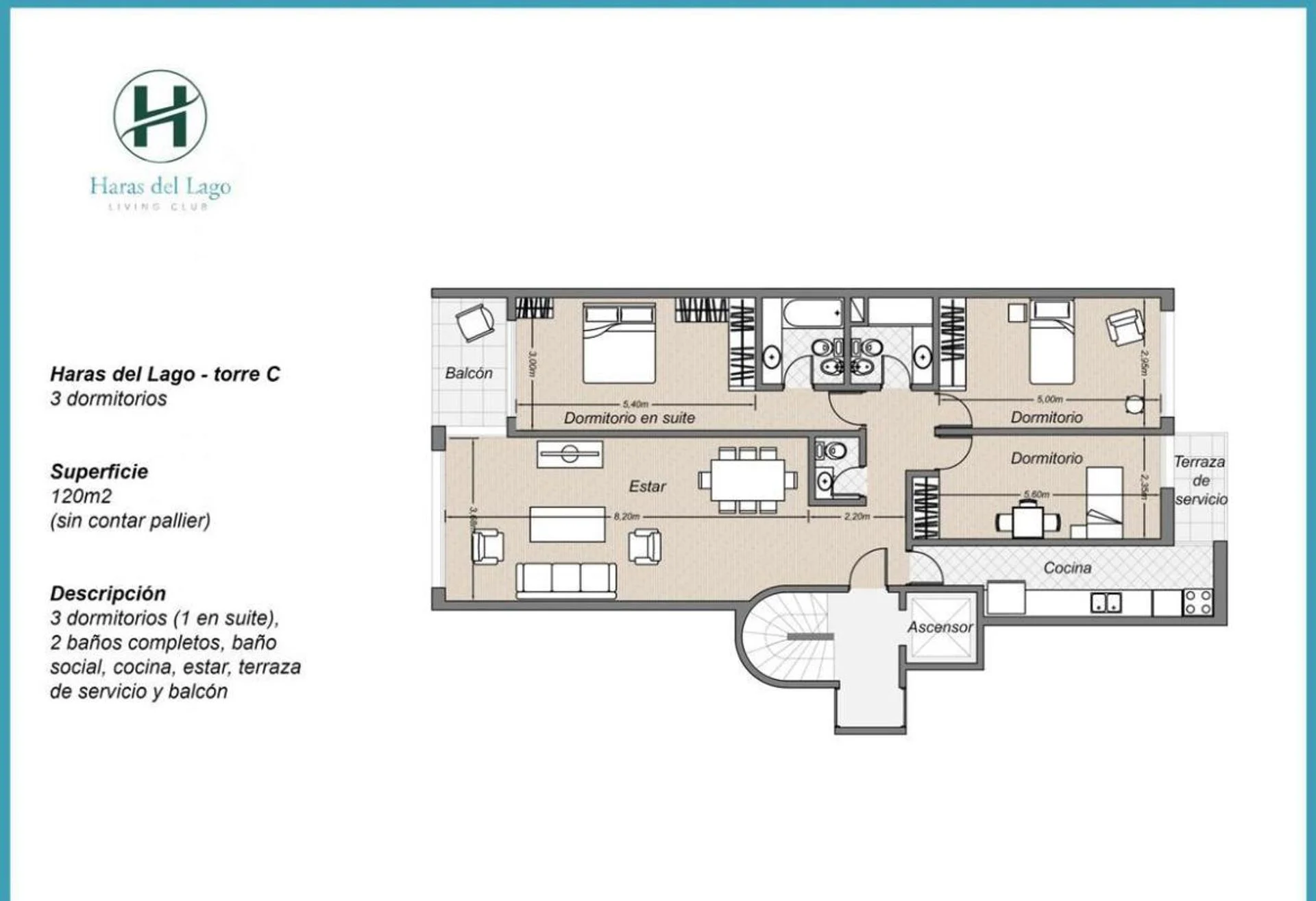
Corredor Responsable: - Contacto: Silvana De La Fuente VENTA APTO EN HARAS DEL LAGO OPORTUNIDAD UNICO CON VISTA AL LAGO Se vende muy buen apto con excelente orientación noreste, muy soleado y luminoso. Cuenta con área social de living comedor amplio con ventanales y terraza al frente. Pisos flotantes de madera. Baño social. Cocina definida con terraza lavadero. Tres dormitorios, uno en suite, y otros dos dormitorios que comparten un baño completo. Construcción tradicional. Calefacción por losa radiante eléctrica y aire acondicionado en todos los ambientes. Agua caliente por caldereta a gas. Gas por cañería en cocina. Garaje doble más un garaje simple, por lo cual cuenta con espacio para tres autos. El barrio cuenta con variedad de amenities: Canchas de tennis, football, basketball y frontón Gimnasio con aparatos Sauna y solarium Piscina abierta Servicio de seguridad 24 hs Dos barbacoas equipadas Kids club Fogón Juegos para niños Car wash Busy hands Jardín preescolar bilingüe Gastos comunes $15.000. Contribución inmobiliaria $45.000. Impuesto a Primaria $15.000 aproximadamente. Alquilado en julio 25 por dos años. Garantía Porto. Precio alquiler $49.000. Compartimos con todos los colegas. Comisión inmobiliaria 3% mas IVA. Cada Oficina es de propiedad, gestión y desarrollo independiente La presente publicación describe las características esenciales del inmueble, debiéndose consultar al responsable de la operación por la eventual actualización de las medidas, descripciones arquitectónicas y funcionales, servicios, impuestos, precios y demás información, cuyos valores son aproximados.

Detalles de la Propiedad

ID

Tipo de Propiedad

Tipo de Operación

Habitaciones

Baños

1477515

Apartamento

Venta

4

2

Dormitorios

Garaje o Cochera

Año de Construcción

Referencia

Actualizado

3

3

2019

MFE9FB

2026-04-11

Ubicación

330к U$S

Ubicación

Canelones

Dirección

Ciudad de la Costa, Ruta General Líber Seregni 23500

Comodidades de la propiedad

Parrillero

Acciones Adicionales

RE/MAX
095...612
598...612
Objeto similar
Cargando...
¡Gana dinero refiriendo colegas!

Invita a otros agentes inmobiliarios y gana 10% de comisión por cada promoción que realicen.