La Juana, La Juana

U$S 130,000

$ ~5,280,000 / + $ 14,000 gastos comunes / U$S 157/m2

Baños

3

M² edificados

828

Año de Construcción

2026

Tipo de Propiedad

Terreno

hace más de

1 semana

Vistas

38

Terreno En Venta De 828m2 Ubicado En La Juana

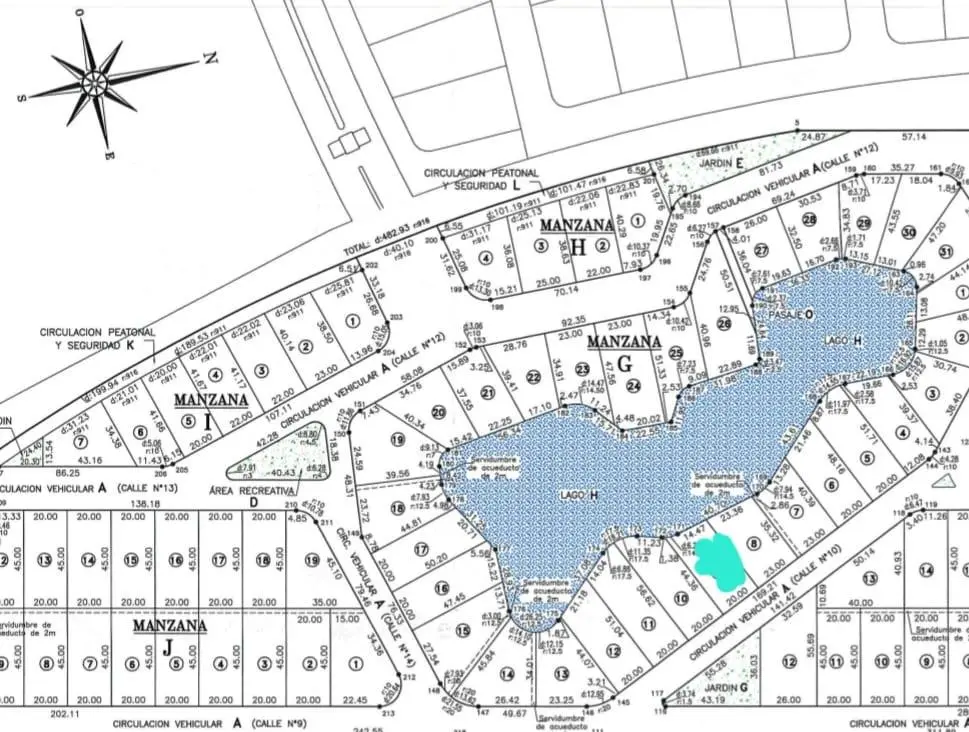
Terreno en venta en La Juana, Canelones, ideal para inversores que buscan una oportunidad en una zona en crecimiento. Con un precio atractivo de U$D130.000, esta propiedad cuenta con todos los papeles al día y un proyecto aprobado para la construcción de una vivienda doble (algo excepcional) en steel framing. Gracias a su ubicación privilegiada, ofrece impresionantes vistas al lago y un excelente asoleamiento, garantizando un ambiente luminoso y acogedor. El precio incluye el amojonamiento realizado por el Agrimensor Boix, un estudio geotécnico de suelos por Insuelo, así como las conexiones de agua y riego. El proyecto final aprobado por el departamento de arquitectura del barrio tiene una superficie de 264 m2.

La propiedad se extiende sobre 828 m2, lo que brinda amplias posibilidades para el desarrollo. Además, ofrece servicios esenciales como agua corriente, luz, alumbrado público, cámaras CCTV, y seguridad 24hrs. El terreno también cuenta con un entorno seguro y amigable, incluyendo varias áreas que se están ejecutando y otras que ya están prontas, como ser área verde, Club House, juegos recreativos, cancha de fútbol, y un paseo comercial. Es importante destacar que el Club House está en construcción y ya comenzó a funcionar el Kinder de St. David\s en el interior del barrio. Está proyectado que en el paseo comercial venga una firma importante de supermercados aunque ya está instalado el Intelli market, escencial para compras de último momento.
Este es un lugar perfecto para construir la casa de tus sueños o invertir en un proyecto de vivienda, en un barrio que se está consolidando rápidamente y del cual puedes obtener una excelente rentabilidad anual.
COMUNÍCATE CON NUESTRO GRUPO de arquitectos y contadores PARA QUE TE ASESOREMOS Y PUEDAS HACER UNA INVERSIÓN SEGURA.
Te esperamos HOY!!

*** ACEPTA FINANCIACIÓN PROPIA HASTA EN 18 MESES CON UN PRECIO DE 143.500 USD***

Detalles de la Propiedad

ID

Tipo de Propiedad

Tipo de Operación

Habitaciones

Baños

1446473

Terreno

Venta

1

3

Año de Construcción

Gastos Comunes

Referencia

Actualizado

2026

$14000

B60310

2026-03-22

Ubicación

130к U$S

Ubicación

Canelones

Dirección

La Juana, La Juana

Acciones Adicionales

Bilbo Propiedades
+59897331332
Objeto similar
Cargando...
¡Gana dinero refiriendo colegas!

Invita a otros agentes inmobiliarios y gana 10% de comisión por cada promoción que realicen.