San Jacinto, Luis A. De Herrera S/n 0

U$S 85,000

$ ~3,400,000 / U$S 876/m2

Dormitorios

2

Baños

2

M² edificados

97

Año de Construcción

1970

Tipo de Propiedad

Casa

hace más de

4 meses

Vistas

517

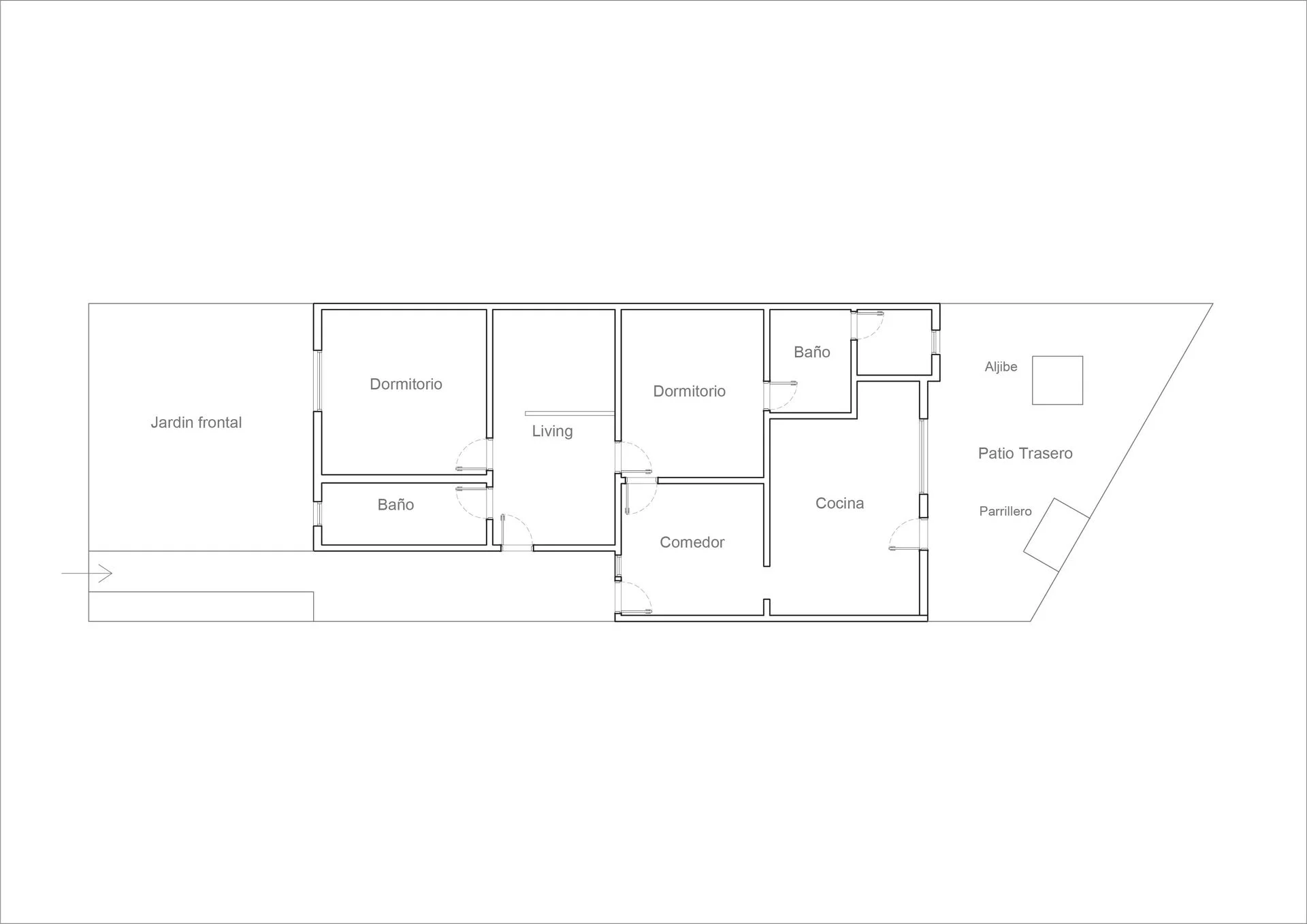
Casa \"a Reciclar\", 2 Dormitorios, San Jacinto.

Corredor Responsable: - Contacto: Fabián Montenegro Se encuentra a la venta \\\"A reacondicionar\\\", casa de dos dormitorios, en San Jacinto, Canelones. Una excelente oportunidad!! Esta propiedad es ideal, cuenta con una construcción solida, muy bien ubicada, a escasos metros de la ruta 11, y a dos cuadras de la principal avenida de San Jacinto. Una localidad muy tranquila que goza de la tranquilidad del interior del país a solo 50km de Montevideo. Tiene la cualidad de contar con espacios amplios y altos. Cuenta con: - Amplio living - 2 amplios dormitorios. - 2 baños (uno de ellos a reciclar como baño en suite) - Comedor independiente. - Amplia cocina, con acceso directo a patio trasero con parrillero y aljibe. - Jardín al frente. No dudes en consultar y programar una visita! Comparto con todos los colegas. Cada Oficina es de propiedad, gestión y desarrollo independiente La presente publicación describe las características esenciales del inmueble, debiéndose consultar al responsable de la operación por la eventual actualización de las medidas, descripciones arquitectónicas y funcionales, servicios, impuestos, precios y demás información, cuyos valores son aproximados.

Detalles de la Propiedad

ID

Tipo de Propiedad

Tipo de Operación

M² edificados

M² del terreno

Habitaciones

1214685

Casa

Venta

97

972

3

Baños

Dormitorios

Año de Construcción

Referencia

Actualizado

2

2

1970

BEC514

2025-08-12

Ubicación

85к U$S

Ubicación

Canelones

Dirección

San Jacinto, Luis A. De Herrera S/n 0

Comodidades de la propiedad

Parrillero

Acciones Adicionales

RE/MAX
099...557
598...557
Objeto similar
Cargando...
¡Gana dinero refiriendo colegas!

Invita a otros agentes inmobiliarios y gana 10% de comisión por cada promoción que realicen.