Maldonado, Turmalina

U$S 124,000

$ ~4,950,000 / U$S 1,531/m2

Bedrooms

3

Bathrooms

1

Area

81

Construction Year

2025

Category

Home

more than

2 months ago

Views

296

Casa De 3 Dormitorios En La Fortuna Maldonado

Proyecto en construccion de 5 casas en duplex en propiedad horizontal, de 1, 2 y 3 dormitorios.
Se construye bajo la normativa de Agencia Nacional de Vivienda, lo que genera exoneración de impuestos.

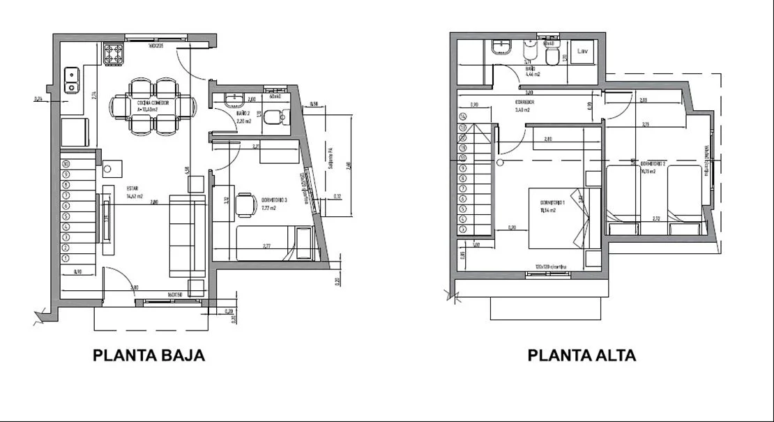
Esta unidad consta de 3 dormitorios. -
En planta baja tendremos, living, cocina comedor integrado, toilette y un dormitorio.
En planta alta se encontraran otros 2 dormitorios y un baño completo.
Cuenta con patio con parrillero propio y entrada para auto.

Se entrega con estufa de alto rendimiento, y pre-instalación para el aire acondicionado en el dormitorio principal.
No se cobran gastos comunes.

Contamos con proyectos de referencia entregados anteriormente.
No apta para banco.

¡No dudes en comunicarte por mas informacion!
(CW227232)

Property details

ID

Category

Type

Area

Built Area

Terrain

1255632

Home

Sale

81

81

1492

Rooms

Bathrooms

Bedrooms

Construction Year

Code

Updated

4

1

3

2025

I6D851

2025-09-24

Location

124к U$S

Location

Maldonado

Address

Maldonado, Turmalina

Amenities

Garage

Patio

Pets Allowed

Additional Actions

KW One
+59827106994
Similar object
Loading...
Earn money by referring colleagues!

Invite other real estate agents and earn 10% commission for every promotion they make.