Canelones, Camino De Los Horneros

U$S 698,000

$ ~27,900,000 / U$S 1,934/m2

Bedrooms

4

Bathrooms

3

Garage

3

Area

361

Construction Year

2025

Category

Home

more than

3 months ago

Views

302

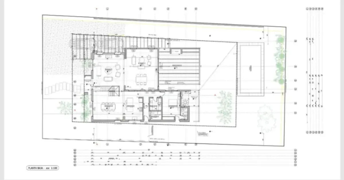
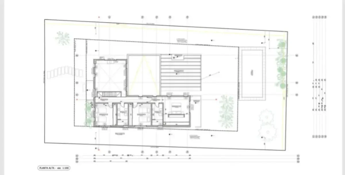
Casa En Venta C/ Cochera En La Tahona

Espectacular edificación en una construcción tradicional, con doble aislacion, doble altura y se desarrolla en 2 plantas. Totalmente construida en Placas Premoldeadas de hormigón, solido y de gran estructura, hermosos detalles y determinaciones. Para todos aquellos que buscan excelente calidad en construcción. Ubicada en el barrio privado del grupo de Cava de la Tahona.
Con un terreno de 835,26 m2 de terreno, con grandes vistas al horizonte,Totalmente despejado.
Gran visibilidad y ubicación privilegiada.

- IMPORTANTE : Esta casa se encuentra en gran avance de obra, la cual te permite y te brinda poder terminar los ultimos detalles a tu gusto.

ENTREGA EN : Noviembre 2025 A Estrenar

Caracteristicas destacadas de la Casa ;

- 4 Dormitorios, 1 en suit
- Dormitorio y Baño de servicio
- Hermosa cocina definida
- Gran y amplio Living
- Comedor
-Calefacción por losa readiante
- Aberturas PVC DHV ( Doble vidrio Hermetico )
- ubicación Noroeste
- Parrillero Techado
-Garage Techado
- Hermosa Piscina


Características Destacadas del Barrio:

- Seguridad y portería las 24 horas del dia y 365 dias del año.
- Plaza de recreacion para niños y niñas
-Club House con piscina para uso exclusivo de sus habitantes.
-Canchas Polideportivas
-Beneficios importantes como residentes para ser socios del club del Golf
- Transporte privado por horario hacia montevideo.
-Servicio de recolección de desechos sólidos.

Terreno: 835,26 m2
Espacio edificado: 361 m2 totales
Espacio interior :254 m2
Área Exterior : 107 m2
Total : 361 m2 totales

DIRECCIÓN: Cava de la Tahona
PRECIO: U$D 698.000

Agente Inmobiliario Jesus Sosa - INMOBILIARIA PLATINUM.

Gran oportunidad, no dude en consultarme.
Trabajamos de Lunes a Domingo 9-22Hs

Property details

ID

Category

Type

Area

Built Area

Terrain

Rooms

1241418

Home

Sale

361

254

8352

5

Bathrooms

Bedrooms

Garage

Construction Year

Code

Updated

3

4

3

2025

LF75E8

2025-10-19

Location

698к U$S

Location

Canelones

Address

Canelones, Camino De Los Horneros

Amenities

Garage

Dressing Room

Swimming Pool

Central Hot Water

Air Conditioning

Heating

Garden

Additional Actions

Platinum
097687948
Similar object
Loading...
Earn money by referring colleagues!

Invite other real estate agents and earn 10% commission for every promotion they make.