Barra de Carrasco, Marsella

U$S 350,000

$ ~14,100,000 / U$S 3,241/m2

Bedrooms

3

Bathrooms

2

Area

108

Construction Year

2026

Category

Home

more than

3 weeks ago

Views

61

Casa De 3 Dormitorios Barra De Carrasco. A Estrenar!! Housing Con Beneficios Fiscales.

Complejo de 3 casas a estrenar. Ultima unidad a la venta de 3 dormitorios.

Muy bien construida, Cerca del Geant, centro de Carrasco y a pasos del Aeropuerto.

Divina zona a 1 cuadra de la Rambla.

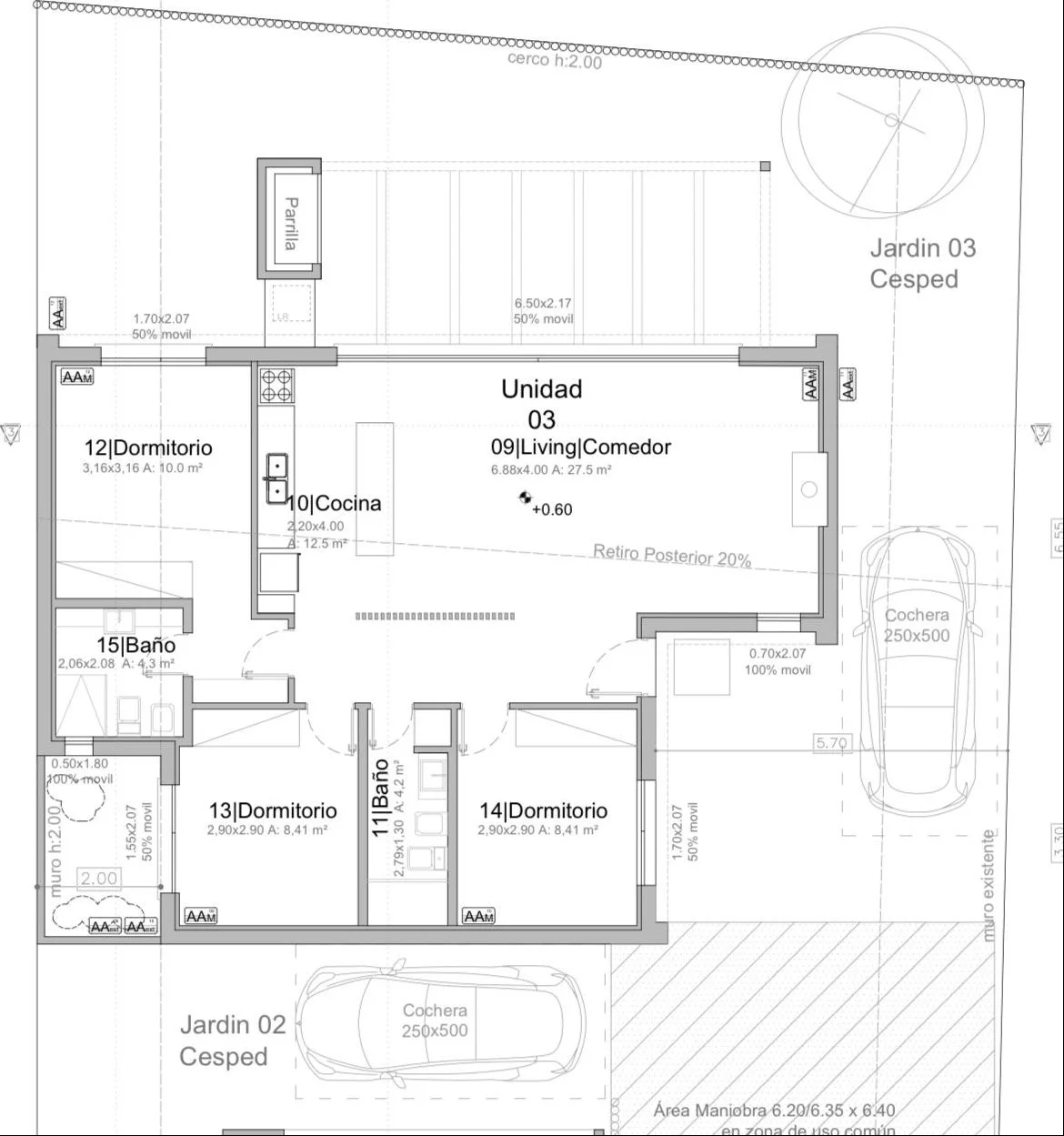
En planta baja: Living Comedor con grandes ventanales y salida a la Terraza del Parrillero con Pérgola. 1 baño. Cocina con placares aéreos y bajo mesada, espacios para lavarropa, lavavajilla, heladera, microondas, barra desayunador y salida al exterior.

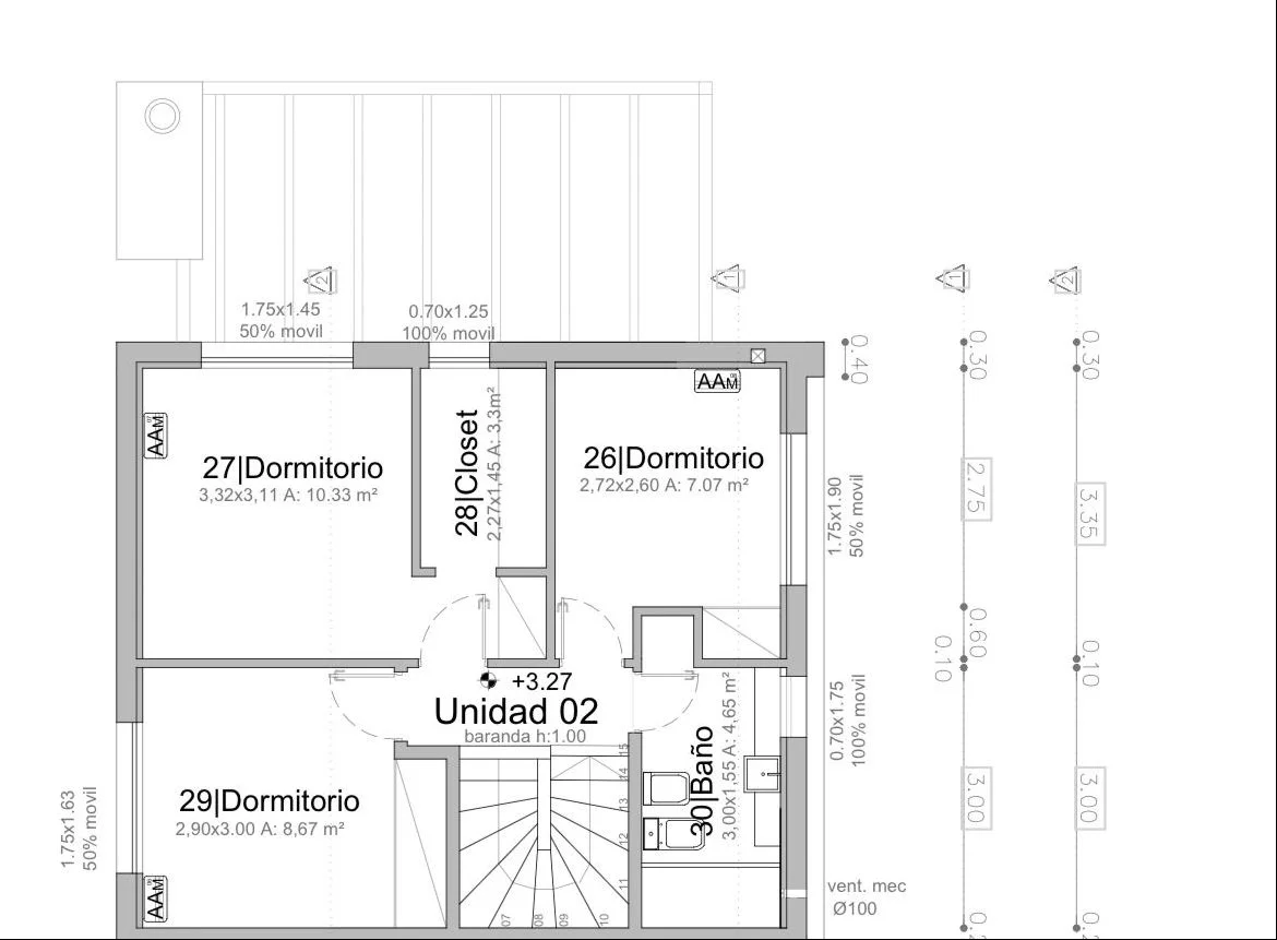
En planta alta: 3 dormitorios, Muy buenos placares y muy luminosos. 1 baño amplio de muy buen tamaño

Muy buena calidad de terminaciones: mesadas de mármol y granito, aberturas de aluminio, vidrios dobles con cámara de aire (DVH), persianas incorporadas en dormitorios.

Pisos de vinílico simil madera. Calefacción con losa radiante eléctrica y en planta baja, estufa de leña de alto rendimiento, previsión para aires acondicionados.

* Los costos por el Plano de Fraccionamiento y los gastos de ocupación están incluídos en el precio.

Conexiones de agua potable, saneamiento, y el reglamento de Copropiedad : U$S 1.000.- mas iva.

Pronta para entrar!!

LAS CASAS ESTÁN AMPARADAS POR LA LEY 18795 (Ley de Vivienda Promovida) por lo que cuenta con IMPORTANTES BENEFICIOS:
- Exoneración del ITP
- Exoneración de IRAE/IRPF a las rentas generadas de los alquileres por 10 años
- Exoneración del IP por 10 años
(CW230245)

Property details

ID

Category

Type

Area

Built Area

Terrain

1461431

Home

Sale

108

108

1502

Rooms

Bathrooms

Bedrooms

Construction Year

Code

Updated

4

2

3

2026

JA22CF

2026-03-30

Location

350к U$S

Location

Canelones

Address

Barra de Carrasco, Marsella

Amenities

Garage

Bedroom Closet

Central Hot Water

Heating

Patio

Laundry

Pets Allowed

Additional Actions

Mónica Castiglioni Bienes Raíces
+59898221226
Similar object
Loading...
Earn money by referring colleagues!

Invite other real estate agents and earn 10% commission for every promotion they make.